欢迎访问 2025中国西部成都国际工程机械展览会官方网站!  时间:2025年7月10-12日    地点:成都世纪城新国际会展中心    距离展会开幕还有 天    
   13122602208    
展会知识

展会知识

展会知识

干货满满(何为轻奢风)侘寂风穿搭,

一、项目概况

项目名称及区位:博翠山藏山—北碚蔡家

装修面积:560㎡,别墅,3+1结构

服务内容:私宅定制EPC(设计+物料采购 +施工)

设计意向:侘寂+轻奢

家庭成员:男女主人+双方父母+女儿

二、业主需求解析

      私宅设计终须围绕业主的需求,我们设计只是在持续有序地解决各种矛盾:建筑与装饰,装饰与机电,装饰与现场,功能与审美,造价与物料;引导业主对功能和效果需求的真实表达、总结形成设计语言,并在设计过程中不断回顾、验证、反馈、提升

干货满满(何为轻奢风)侘寂风穿搭,(图1)

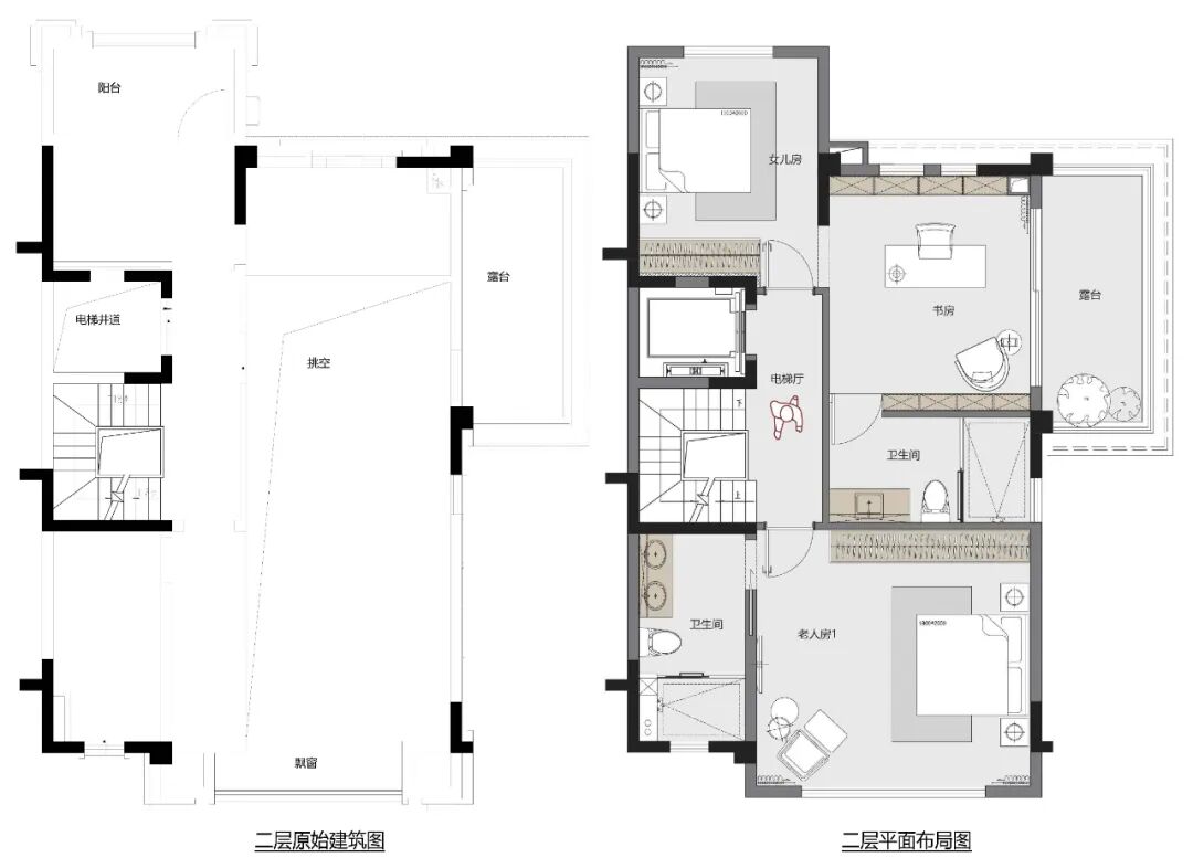
三、原始建筑与装修平面布局

干货满满(何为轻奢风)侘寂风穿搭,(图2)

干货满满(何为轻奢风)侘寂风穿搭,(图3)

干货满满(何为轻奢风)侘寂风穿搭,(图4)

干货满满(何为轻奢风)侘寂风穿搭,(图5)

干货满满(何为轻奢风)侘寂风穿搭,(图6)

干货满满(何为轻奢风)侘寂风穿搭,(图7)

干货满满(何为轻奢风)侘寂风穿搭,(图8)

干货满满(何为轻奢风)侘寂风穿搭,(图9)

干货满满(何为轻奢风)侘寂风穿搭,(图10)

干货满满(何为轻奢风)侘寂风穿搭,(图11)

干货满满(何为轻奢风)侘寂风穿搭,(图12)

干货满满(何为轻奢风)侘寂风穿搭,(图13)

四、土建改造解析

干货满满(何为轻奢风)侘寂风穿搭,(图14)

▲1.开挖、楼板下沉,把原来1米建筑回填厚度挖掉,原建筑负一层至一层空间变为两层

▲2.原楼梯区域拆除,重新计算构造楼梯

▲3.公区斜坡区域下沉,原车库通风井移位

干货满满(何为轻奢风)侘寂风穿搭,(图15)

▲1.加板,得到负一层

▲2.入户门厅处挑空

▲3.从一楼至负二楼的采光天井

▲4.公区斜坡区域下沉,原车库通风井移位

干货满满(何为轻奢风)侘寂风穿搭,(图16)

▲公区斜坡区域下沉后的采光方案,负一层楼板与公区走道平齐,负二楼通过下沉庭院采光

▲封闭阳台,合并成大厨房

▲原厨房扩大为西厨,增加干货储藏

▲飘窗拆除

▲花园结构板上抬与客厅楼板平齐

▲封闭阳台,合并成女儿房

▲原卫生间区域扩大为书房,露台处外墙拆除形成超大采光面

▲飘窗拆除

▲挑空处增加结构板

▲封闭阳台,合并成女主书房

▲增加电梯厅走道宽度至1.3米

▲封闭阳台和露台至主卧

五、效果详解

▼主要饰面材料

▼负二层入户门厅

▲挑空至负一层,七步台阶下到负二层

▼负二层健身区

▲健身区:留足电梯厅空间,其余空间健身+游戏,桌球区朋友会玩耍,家庭健身时间较多;空调藏于木格栅吊顶里面;滑门遮挡楼梯

▼负二层娱乐室

▲娱乐室:有一定社交功能,喝茶、喝酒、看球赛、看电影、机麻等多人活动,全部在娱乐室,换气和新风要足,考虑空气净化;空调回风口藏于灯槽内

▼负一层工作间

▲工作间:主要用于家庭办公,兼顾朋友的商务交流,有办公及茶水的配套功能,空调藏于木格栅吊顶里面

▼一层客餐厅

▲客餐厅:中餐、西厨、简餐和下午茶,多人交流空间,用餐和交流的配套功能齐备

▼三层主卧室

▲主卧:睡觉,发呆的地方,极简显宁静,漫反射光源多显温馨;空调设备藏于屋面夹层内

我们坚信:阅熙设计美好生活,有我们在,你是幸福的

电话:18996470345 李德兵

抖音号:1721909047

   阅熙设计由李德兵先生创建于2016年,装饰工程承包贰级,专注于高端私宅,阅熙设计是定制精装修总承包(EPC),而不是传统的设计公司、家装公司、监理公司,我们受业主委托,按照合同约定对工程项目的设计、采购、施工、试运行等实行全过程的承包,让客户省心、省时、省钱(阅熙简介详见公众号)

版权所有 © 上海企升展览有限公司    沪ICP备2021023001号-6