基于新时代教学理念下高等教育教学楼室内空间改造探索与实践——以清华大学教室空间改造项目为例Exploration and Practice of Interior Space Renovation of Advanced Education Teaching Building Based on the Teaching Concept in New Period: Tsinghua University Teaching Space Renovation Project
尹思谨,左杰*YIN Sijin, ZUO Jie*
摘要:本文以清华大学二教、西阶、三教3个建造于不同时期、不同类型的教学楼室内改造项目实践为例,探讨了当下高等教育教学室内空间为适应新的教与学理念及模式的改造策略。
关键词:清华大学教室空间,新时代教学理念,室内改造
0 引言始建于1911年的清华大学校园规划建设分为6个阶段,清华学校时期(1911–1928)、初期清华大学时期(1928–1937)、国立西南联合大学时期(1937–1945)、复员后的清华大学(1945–1949)、新中国成立后的清华大学(1949–1976)及改革开放后的清华大学(1977至今)[1]。目前主要承担公共教学任务的教学楼集中在新中国成立后所建的一教、二教、西阶教室,以及改革开放后陆续建造的三教、四教、五教和六教,最晚落成的第六教学楼距今也将近20年,因此各教学楼教学空间的布局、环境、设施设备等已逐渐与现今的教学理念、使用需求产生差距。2021年清华大学迎来了建校110周年的庆典,在此背景之下,学校启动了较大范围的公共教学楼改造工程。
清华大学二教、西阶和三教,分别代表了清华大学内3类较为典型的教学空间环境。二教建于1954年,位于清华大学校园历史建筑保护核心区西南侧,建筑风格中西合璧,具有鲜明的古典特征和历史文化性,是典型的古典传统建筑类型(图1)。西阶教学楼于1955年建造,2007年重建,位于二教北侧、大礼堂西侧,设计由关肇邺院士团队主持,建筑外观与周围历史环境和谐统一,设计语言庄重简洁、建筑风格古朴典雅,是与历史环境融合共生的现代建筑类型(图2)。三教则建于1980年代,由3栋教学楼组成,平面布局形态规整,设计风格现代简洁,充分展现了建设时期的年代感,其朴素稳重的外观形象在清华人心目中占据着不可替代的位置(图3)。
1 二教外观
2 西阶外观
3 三教外观
1 第二教学楼:修旧如旧,延续传统改造前的二教门窗均已破损严重,内部公共空间界面老旧、开裂,后期加入的设备与周围环境格格不入。教室内部在过往使用过程中进行的修缮并没有考虑到建筑本身的文化特征,界面处理简单化,缺乏针对性设计,与建筑及公共空间的古典风格不相匹配(图4、5)。
4 改造前二教南侧首层前厅
5 改造前二教首层教室空间
此次需要改造的3间大教室中有2间为阶梯教室,基于二教建筑本身鲜明的历史文化特征,在空间层面上并不需要进行调整。因此二教的室内改造设计理念为:尊重建筑本身的历史传统和设计风格,公共空间修旧如旧,教室空间延续传统。
二教的公共空间采用修旧如旧的设计策略,以翻修见新为主,门窗形式、地面水磨石及拼花纹样、楼梯古典铸铁栏杆、顶部石膏线脚花饰等重要装饰元素完全按照原样重做,墙面则补充深木色墙裙以整合凌乱的暖气及设备位置(图6、7)。两间阶梯教室保留了原有的地面结构,设计重点放在天花——结合新增加的空调系统采用了藻井造型和定制灯具,利用木质墙裙上方的线脚,用条形光源对浅驼色的肌理墙面进行轻微的洗墙处理(图8、9)。全面更换了教室桌椅,在排距无法改变的情况下,通过减少桌椅个数、提升技术性能、选择舒适材料等手段满足师生使用的舒适性和便捷度需求。从而在保证新的教学使用要求的前提下,使教室内部风格与建筑外观和公共空间保持统一。
6 改造后二教首层公共空间
7 改造后二教二层公共空间
8 改造后二教首层教室空间
9 改造后二教二层教室空间
二教代表了清华校园内一类典型的教室空间,建筑本身具有较强的历史文化特征,校内有的教学楼甚至为北京市重点文物保护类建筑,但仍然需要承担日常的教学使用功能。因此如何在文化传统保护和新功能需求之间寻求恰当的平衡点是这类建筑空间改造的重点。二教采取的原则是建筑空间轻度干扰,基础设备有机整合,设施满足最新要求。后期正在进行的清华大学旧电机馆——新闻与传播学院的改造也属此类。
2 西阶教学楼:致敬建筑,寻求统一西阶教学楼始建于1955年,与二教相距数十米,紧邻校园核心区的大礼堂,位置极为重要。2007年重建,建筑内部公共空间与建筑外观保持了一致的雅致端庄气质(图10);教室内部或许由于空调设备的原因,并没有贯彻同样的设计原则,风格气氛与教室外部空间大相径庭(图11)。
10 西阶首层公共空间
11 改造前西阶二层教室
与二教一样,西阶也是空间相对固定的阶梯教室,位于建筑二层双坡顶的下方,寻求教室内部空间和建筑设计风格的统一性似乎是不作他想的选择。西阶教室的改造设计采用了木质屋架坡顶造型,延续了建筑的设计逻辑,主梁两侧次梁的布局和斜向木纹穿孔吸音板的划分充分考虑了空间的尺度(图12)。之前设置于教室正中的空调设备归置到坡顶的两侧,采用水平方向条形风口形式满足专业要求(图13)。铜色金属边框的吊灯造型简洁,根据尺度和高度的需要进行了定制。改造后的西阶教室视觉重点基本集中在木色屋架吊顶造型,和公共空间及建筑外观风格更为谐调统一。
12 改造后西阶二层教室空间
13 改造后西阶二层教室空间局部
拥有百年历史的清华校园建筑建于不同的历史时期,建筑风格有鲜明的时代文化特征,室内公共空间大多能够与建筑风格保持相对一致性,而教室内部往往一般化处理,忽略建筑从外观到室内空间的完整性,这也是在校园建筑改造中经常遇到的问题。
3 第三教学楼:尊重环境 探索创新清华大学第三教学楼是承担清华大学公共教学任务的重要教学场所,建于1980年代,由3栋教学楼组成,由南至北分别为一段、二段和三段教学楼,总建筑面积约11,000m2。历经近40年的使用,教学环境和设备破损老旧。新时代下教学理念和模式的更新,使得三教的改造成为必然。
开展项目前与各院系承担公共课的老师们进行了座谈,随着科技的迅速发展,当下高等教育教与学的理念和模式也在发生巨大的变化:大课堂人数减少,灵活度要求提高;教师单向授课减少,学生互动讨论增加;授课方式多样化并存,既需传统黑板板书,也要现代智慧黑板,既有传统线下教学,也要远程线上授课,甚至采用线上线下融合的教学方式。因而对教学空间的灵活性、多功能性、可变性和设备性能提出了很高的要求。
基于此,第三教学楼室内改造设计以开放灵活多样为空间设计理念,注重学习空间的灵活可变性,以适应多种教学和学习模式的需求。同时,打破传统单一功能性教学空间的封闭感,加强各功能空间的相互渗透,植入开放式学习空间,以空间形态引导学生之间、师生之间发生更多的交流互动,激发创新意识,鼓励探索思辨,满足新时代教育理念下对教学空间的高要求。当学习活动不再局限在某个场所或某段时间之内,我们需要思考的是如何通过空间设计去为这种随时随地发生的学习活动创造条件,Perikins+Will事务所的这段话恰如其分地描述了三教室内空间改造设计所追寻的目标。
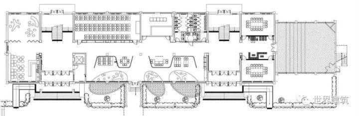
作为清华园中的标志性教学楼,三教的外立面改造修旧如旧,外墙色彩和细节力求与原建筑充分一致,沿用了老三教的原样楼体标牌,保留了建筑1980年代建造时期具有的气质,与清华校园周围环境和谐共处。而室内希望在朴实简约的外表下充分释放空间的丰富性,并试图通过打开的首层空间和庭院关系,使学生在3个教学楼的活动能够相互深度渗透,形成室内外交融一体的学生活动和学习场所。同时,3个教学楼分别采用3种设计主题进行空间重塑,试图营造识别性强且空间形式丰富的教学空间(图14)。
14 改造后三教总平面
3.1 一段教学楼:折线空间一段教学楼以折线为空间造型主题,打破原规矩柱网系统形成的行列式矩形平面布局,通过折线墙面的引入,在柱网中行走和闪躲,营造灵活多变、气氛轻松的空间环境(图15、16)。同时按照楼层设计了不同的标识性色彩,从下至上分别为草绿、紫、湖绿色(图17)。
15 改造后三教一段二层平面
16 改造后三教一段首层平面
17 改造后三教一段分色轴测
首层利用现有柱网体系围合了2个折面组成的多边形中型教室,成为一层开放公共空间的视觉焦点,其周边及北侧以大小不一的折线多边形地面组团,界定了不同规模的讨论学习区,并在天花设计上以同样形态的张拉膜发光顶相呼应(图18、19)。
18 改造后三教一段首层公共空间
19 改造后三教一段首层中型教室
二、三层以折面为主题重新组织了走廊和教室的空间界面,将多边形开放讨论区结合原有柱网设置在走廊中部,拓展了其作为单纯交通空间的含义。两侧折面墙体结合教室划分,设计系列模数化的斜向雾面玻璃窗,在呼应造型的同时优化了建筑中部的采光条件(图20、21)。由折面围合的梯形教室面积大小略有不同,面积较大的教室采用一桌一椅,较小的采用桌椅一体的排布方式,充分满足教学中不同使用方式的需求(图22)。
20 改造后三教一段三层公共空间
21 改造后三教一段二层公共空间
22 改造后三教一段三层教室空间
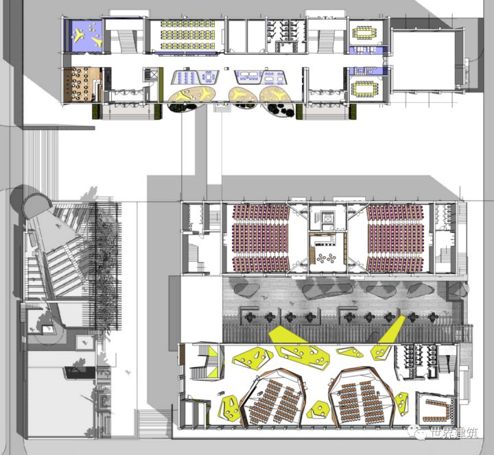
3.2 二段教学楼:韵律阶梯
二段教学楼是由4个大阶梯教室组成的,由于结构的关系,排距不具备增大的条件(图23)。设计以韵律为主题,使空间设计与阶梯教室平面布局特点相契合。设计重点放在天花上,重复的弧形造型结合反光灯槽和灯带呼应韵律主题,天花表面采用新型环保材料微孔砂保证大空间的吸音效果。墙面的穿孔吸音铝板强调水平横向、深浅灰度的铺陈,再次展现空间韵律感。构图式条形彩色座椅条的插入呼应主题的同时,提示了4间大教室各自的标识性(图24、25)。
23 三教二段首层平面

24.25 改造后三教二段阶梯教室
3.3 三段教学楼:插入式盒子
三段教学楼共5层,是3个教学楼中体量最大的一个,四层、五层主要是外语语音教室。如前所述,在打开了首层南向公共空间,与二段三段形成空间融合系统的同时,通过变换材质和彩色盒子空间的植入来营造开放式的学习空间(图26)。
26 三教三段教室盒子空间设计概念
首层南侧椭圆形彩色地面限定了大小不一的开放式学习和讨论空间,天花呼应地面做法设计了相应形态的发光顶。北侧走廊利用90人教室墙面,插入的蓝色盒子墙体,通过不同的色块和壁龛形成可休息可展示的功能墙(图27、28)。卡座式工位单元的组合排列提供了一组私密性较强的学习空间,是一次家具成品配合空间设计的有趣尝试(图29、30)。
27 三教三段首层平面


28-30 改造后三教三段首层公共空间
标准层则通过局部退进教室隔墙和开放空间的做法植入盒子式的学习讨论空间,走廊一侧的彩色盒子通过家具的组合提供了多变的课间讨论空间,教室一侧的木质盒子则为教室内部的使用方式暗示了新的可能性(图31-35)。
31 三教三段二层平面
32 改造后三教三段四层教室空间

33.34 改造后三教三段二层公共空间
35 改造后三教三段二层教室空间
色彩设计按照楼层设计了不同的标识性色彩,从下至上分别为从冷色系过渡到暖色系的蓝、紫、草绿、黄、橙色,楼层转换位置色带的设置起到了很好地提示作用(图36)。
36 三教三段分色轴测
三教的改造由于原建筑层高限制、楼体结构加固、新设备系统引入,以及突发的疫情等原因,在工程施工推进中遭遇了一个又一个的困难,所幸最终大部分设计内容实现了最初的构想。
三教代表了清华校园内较为多见的一类教学环境,基于其建造的年代特征,大部分建筑设计现代简洁,稳重大方,教学空间内部遵循传统教学楼设计模式,公共空间多只承担交通疏散功能,空间感受单一。此次三教改造以空间的重新梳理和塑造为线索,特别强调了公共空间节点的介入和各功能空间界面之间的模糊性、渗透性,希望以空间的特质来适应、鼓励和引导新型的教和学活动的发生。
4 结语随着信息时代的超速发展,高等教育教学的理念和模式也随之发生巨大的改变,传统单一的教学楼空间布局已无法承载新的教学理念和教学模式,而具有深厚文化历史特征的教学建筑则还面临平衡传统文化和满足现代需求的双重挑战。另外,网络虚拟世界对现代人类社会,特别是新生代的影响无疑是把双刃剑,能否通过物质物理环境的塑造来进行积极正向的引导,也是一个令人关注的课题。□
[清华大学第二教学楼室内改造设计]设计单位:清华大学建筑学院,清华大学建筑设计研究院主创设计师:尹思谨,左杰方案设计团队:胡单单,涂芬,史丽娜,孙佳明施工图设计团队:陈巍,杨洪,王春香,李冰,刘陆设计面积:774.09m2设计时间:2018完成时间:2020摄影:王巍
[清华大学西阶教室室内改造设计]设计单位:清华大学建筑学院,清华大学建筑设计研究院主创设计师:尹思谨,左杰方案设计团队:胡单单,涂芬,史丽娜,孙佳明施工图设计团队:陈巍,杨洪,王春香,李冰,刘陆设计面积:297.05m2设计时间:2018完成时间:2020摄影:王巍
[清华大学第三教学楼室内改造设计]设计单位:清华大学建筑学院,清华大学建筑设计研究院主创设计师:尹思谨,左杰方案设计团队:胡单单,涂芬,史丽娜,孙佳明,丁春胜,王思佳施工图设计团队:霍春龙,陈巍,杨洪,刘霄,高符荣,崔艳辉,李冰,刘陆设计面积:11,104.5m2设计时间:2018完成时间:2020摄影:王巍
参考文献[1]魏篙川.清华大学校园规划与建筑研究[D].北京:清华大学建筑学院,1995.
尹思谨 B.1968,清华大学博士清华大学建筑学院副教授
左杰*(通讯作者)B.1982,清华大学博士研究生42865777@qq.com
本文引用格式:尹思谨,左杰.基于新时代教学理念下高等教育教学楼室内空间改造探索与实践——以清华大学教室空间改造项目为例[J].世界建筑,2022(03):78-83.