

1、什么是骨料?
答:骨料即在混凝土中起骨架或填充作用的粒状松散材料。骨料在土木工程中的应用:水泥混凝土、沥青混凝土、道路基础、铁路道渣、砂浆等。每年用量约20亿吨。
2、骨料可以分为几类?
答:(1)按骨料来源分为:
天然岩石骨料:由天然岩石组成的骨料,如砂、卵石、碎石等;
人工骨料:热加工骨料有膨胀页岩、膨胀蛭石等;工业副产物有矿渣、铁渣、粉渣等;
再生骨料:破碎混凝土、破碎粘土砖等。
(2)按骨料粒径分为:
粗骨料:粒径大于4.75mm的岩石颗粒,如卵石、碎石等;
细骨料:粒径小于4.75mm的岩石颗粒,如河砂、山砂、海砂等。
(3)按照骨料的密度分为:
普通骨料:密度在2500—2700kg/m³;
轻骨料:密度在0~1000kg/m³,如陶粒、煅烧页岩、膨胀蛭石、膨胀珍珠岩、泡沫塑料颗粒等;
重骨料:密度在3500—4000kg/m³,如铁矿石、重晶石等。
3、砂石骨料生产线的设计原则有哪些?
答:①多级破碎;②处理量前后级匹配;③中转料仓设计;④物料尺寸前后级匹配;⑤多筛少破,多破少磨;⑥根据产量和运输高度差确定皮带;⑦现场灵活布局。

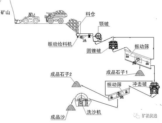
4、砂石骨料生产线的系统构成有哪些?
答:一般有4个系统:
给料系统:一般都是使用振动给料机设备负责是石料的供应;
输送系统:有皮带输送机或板式输送机等;
破碎系统:整套设备的心脏,有多台破碎机组成,将各种矿石原料破碎成所需粒度的成品料;
筛分系统:圆振动筛或者直线振动筛等筛分设备。
5、含泥量、石粉含量和泥块含量是指什么?
答:含泥量是指天然砂中粒径小于75μm的颗粒含量;石粉含量是指人工砂中粒径小于75μm的颗粒含量;泥块含量是指砂中原粒径大于1.18mm,经水浸洗、手捏后小于600μm的颗粒含量。
6、砂的颗粒级配和粗细程度指什么?有什么影响?
答:颗粒级配:是指粒径不同的砂粒互相搭配的情况。颗粒级配不良,空隙率较大,则需较多的水泥浆填充;颗粒级配良好,空隙率较小,需较少的水泥浆填充。
粗细程度:不同粒径的砂粒,混合在一起后的平均粗细程度。在砂用量相同的条件下,粗颗粒表面积小,细颗粒表面积大,包裹颗粒用的水泥浆多少就会有所差别。
研究发现:在拌制混凝土时,砂的粗细程度和颗粒级配应同时考虑的问题。当砂中含有较多的粗颗粒,以适当的中颗粒及少量的细颗粒填充,则既有较小的空隙率又具有较小的总表面积,不仅水泥用量少,而且可提高混凝土的密实度与强度。
7、粗、细骨料进场要注意哪些事项?
答:粗骨料主要应控制其粒径、级配、粒形、石粉含量、泥块含量。每车进行宏观检查,不合格不得卸车。此外,要按规范要求,按批量检验各项指标。细骨料应控制细度模数、含泥量和泥块含量。每车进行宏观检查,不合格不卸车。同样,应按规范要求批量检验。
8、河沙有何特点?山砂、海砂、沙漠砂为什么不适合作建筑用砂?
答:河沙具有粒型好,坚固、耐久,资源丰富,开采成本低,杂质少等优势,而山砂易风化,表面粗糙,棱角多,杂质多,含泥量大;海砂的资源丰富,但杂质多,氯离子多,具有腐蚀性,淡化成本高,可用来填海造陆、工业、炼铁等(控制氯离子含量);沙漠砂太细,有土,太黏,可塑性较差,故山砂、海砂、沙漠砂均不是建筑用砂的首选。
9、海砂降氯的方法有哪些?
答:目前,降氯方法有海砂自然放置法、淡水冲洗法、机械法和混合砂法,沿海地区海砂基本上是通过淡水冲洗法进行降氯。
10、从外观上如何分辨出机制砂和河沙?
答:机制砂是通过冲击式破碎机等专业的制砂设备,粉碎后得到的砂石材料,与天然河沙相比,具有棱角尖锐分明、针片状多、粗糙的特点。河砂是从河道里直接挖取的,所以会掺有小卵石和细沙,这些小卵石受到河水的长期冲刷,棱角比较圆润,而砂石料设备生产出的机制砂棱角就比较尖锐分明,且坚固性比河砂差。

11、砂按技术要求分为几类?
答:砂按技术要求分为Ⅰ类、Ⅱ类、Ⅲ类:
Ⅰ类宜用于强度等级大于C60的混凝土;
Ⅱ类宜用于强度等级C30~C60及抗冻、抗渗或其他要求的混凝土;
Ⅲ类宜用于强度等级小于C30的混凝土和建筑砂浆。
12、骨料用于混凝土有何作用?
答:骨料可提供混凝土很好的稳定性和比水泥石更好的耐久性,能够起到减小收缩,抑制裂缝扩展,传力,降低水化热,提供耐磨性等作用。在不影响混凝土性能的条件下,在混凝土中尽可能多地加入骨料,可以降低混凝土的成本。
13、混凝土中骨料的基本要求是什么?
答:①具有良好的颗粒级配,使堆积空隙率小,颗粒总比表面积较小,以减少水泥浆用量;
②骨料颗粒表面干净,以保证与水泥浆有良好的粘结力;
③含有害杂质少,不得含有影响水泥凝结硬化和后期混凝土耐久性的成分;
④具有足够的强度和坚固性,以保证起到骨架和传力作用。
14、如果砂子太细,对混凝土有什么影响?如果只有细砂怎么办?
答:砂子太细,混凝土需水量上升,而且用细砂配制的混凝土其可泵性、保塑性均极差,混凝土强度会下降,易开裂。
如果砂源有问题,可用细砂加部分机制砂配制泵送混凝土。如,可用细度模数小于2.0的细砂掺细度模数3.0~3.2的机制砂,以6:4左右的比例,观察其流动性、可泵性,具体可通过试验确定配比。
15、那如果砂子含泥量大,甚至有泥块,对混凝土的影响大吗?
答:肯定有影响。砂含泥量大,混凝土需水量大,保塑性差,收缩加大,混凝土强度下降,结构易开裂。因此,要控制砂含泥量≤3%(C30~C50),高强混凝土含泥量要求更高。至于泥块,除了上述影响外,还会严重影响混凝土强度。比如,泥块会削弱混凝土断面,浇筑地面时泥块上浮,干缩后会在表面形成凹坑等缺陷。
16、混凝土中石粉的含量多少合适?
答:混凝土中加入适当的石粉是有好处的,但是,石粉含量应该适量。机制砂中石粉的主要成份为碳酸钙,但水化作用并不是无限的,也要受限于水泥的成份。如果石粉含量过高,不利于集料与水泥石的粘结,降低混凝土性能。另外,石粉含量超过一定限值后,不利于混凝土的耐久性能,因为单方石粉承担的保水量明显减少,干缩明显变大。
综合各种研究,一般C50以下混凝土石粉含量应控制在10%~15%,而C50以上混凝土石粉含量应该不超过10%。
17、为什么同样配比混凝土,卵石混凝土比碎石混凝土强度低3~4MPa?
答:粗骨料的表面粗糙,有利于水泥浆与骨料的界面强度。根据多年试验,卵石配制的混凝土一方面由于其含风化石较多,本身压碎指标低于碎石,而且表面光滑,界面强度低,因此由其配制的混凝土强度会比同配比碎石混凝土低3~4MPa。
18、为什么每班都要测定砂石含水率?
答:砂石在预拌混凝土中各有800~1100kg/m³用量,其每1%的含水量就会带来混凝土中用水量8~11kg的影响。特别是砂子,通常从河中采集,含水率变化较大,如不经常检测含水率,及时调整搅拌用水量,会造成各盘混凝土坍落度、可泵性、强度的很大波动。
19、什么是碱骨料反应?有什么影响?
答:混凝土中的碱(Na2O、Ka2O)与化学成分为活性二氧化硅的骨料发生化学反应,生成碱-硅酸凝胶后吸水膨胀,膨胀应力使混凝土开裂,这个过程称为碱骨料反应。此反应会导致混凝土内部产生局部体积膨胀,甚至使混凝土结构产生膨胀性破坏。
20、怎样防止碱骨料反应?
答:如当地粗骨料中含有活性二氧化硅,则要严格限制混凝土外加剂碱含量,如《混凝土结构设计规范》(GB50010-2002)规定,当使用碱活性骨料时,混凝土中各类材料总碱量≦混凝土质量的3%。
21、与传统的建筑骨料项目相比,移动建筑骨料项目有何优势?
答:① 资源门槛:不受固定资源及国家产权限制,几乎无资源门槛。
② 资金门槛:不涉及大型资源产权购买和基础设施建设,仅仅需要基本的设备购买和较低的资源购买费用,有个几百万就能做,资金门槛低。
③ 技术门槛:只要有懂得设备操作和管理的职员即可完成,技术门槛低。
④ 再利用:基本无需配套基建,可根据资源分布和项目分布,随时移动转场,用户甚至可直接出售,收回设备投资成本。
▼
往期精彩回顾
▼
机制砂生产工艺及设备选型原则:给料、破碎、筛分、清洗等,选对是关键
洗砂、选矿过程中,沉淀池是如何处理废水的?4种类型,18张直观动图带你了解
