
名词解释:
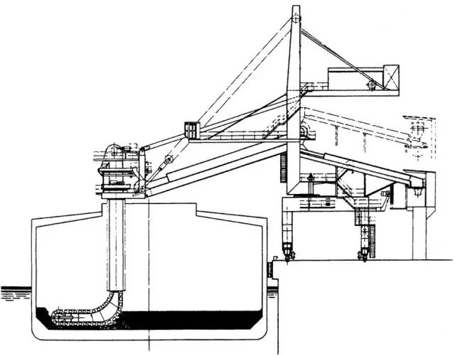
链斗式卸船机(chain bucket ship unloader),是一种利用链斗从船舱内挖取物料并将物料通过机上输送机系统卸至码头输送系统的散料连续式卸船机械,又称悬链式链斗卸船机。其主要由链斗机构、机上输送机系统、升降机构、平衡系统、移动系统(移机或移船)、电气控制系统及安全辅助装置等部分组成。
链斗式卸船机比较适应于堆积密度小、粒度不大的物料,如煤炭、石油焦、水泥熟料、矿砂、粮食等。卸船能力在200t/h~4500t/h,适应船型2000DWT~200000DWT。卸船作业时主要利用自由悬垂段的链斗在料层中分层取料,或依次沿舱底取料。柔性的悬垂段链斗在沿舱底取料时,可自动补偿因船舱减载上浮或受风浪影响引起的颠簸,始终保持一定数量的链斗与舱底接触,因此其清舱量在3%以下,对于载重量较大的驳船或专用驳船,其清舱量仅为1%左右。
链斗式卸船机可分为固定式和移动式,其中固定式链斗卸船机多用于内河2000吨级及以下的码头,需要设置移船装置;移动式链斗卸船机可沿铺设在码头面上的轨道行走,可对不同舱口移动作业。
链斗式卸船机与斗轮式卸船机最大的不同在于取料及提升装置,链斗式卸船机取料及垂直提升是采用钢制链斗,传动链驱动;斗轮式卸船机依靠斗轮取料,波纹挡边带式输送机提升物料。
链斗式卸船机主要特点是:卸船效率高、环保性好、清舱量小、能耗低、操作简单。
图1 链斗式卸船机示意图

图2 移动式链斗式卸船机

图3 固定式链斗式卸船机

图4 链斗式卸船机头部取料链斗

